有限会社佐藤不動産

高田町字本丸【売地】  [No.66] 

事前にご予約いただけるとスムーズにご案内できます♪

物件名 高田町字本丸【売地】 
所在地 陸前高田市高田町字本丸323-5
交 通 陸前高田駅 徒歩9分
価 格 980万円
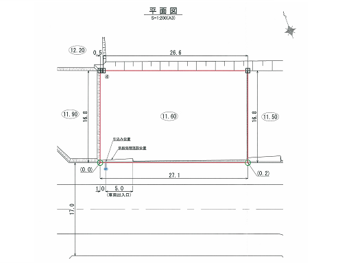
土地面積 456㎡(約137.94坪)
地 目 宅地
土地権利 所有権
都市計画 非線引区域
用途地域 第一種住居地域
建ぺい率/容積率 60% / 200%
地勢/現況 平坦 / 更地
接 道 幅17m道路に27.1m接道
設 備 ・上水道:引き込み有
・下水道(汚水):引き込み有
 下水道(雨水) :要管理者協議
・ガス:個別プロパン
備 考 ・現況引渡しです。
・別途仲介手数料が掛かります。
地 図
物件種別 土地
地域コード 101
詳細情報 ・土地利活用促進バンク登録物件(登録番号246)です。
こだわりアイコン 整地済み

<< 前のページに戻る

LINEでお問い合わせ可能です
友だち追加

不動産・住宅情報サイト【LIFULL HOME'S/ライフルホームズ】

キャッシュレス

クレジットカード決済

草刈り

有限会社佐藤不動産

岩手県陸前高田市高田町字西和野55-7
TEL:0192-55-3233
(AM9:00〜PM5:30 日曜・祝日休み)

Twitter

LIFULL HOME'S(ライフルホームズ)優良店認定